Продам історичну торгово офісну будівлю на Поштовій площі (№ 2-496-115)
Ціна: 6 000 000 $

Характеристики
| Ціна: | 6 000 000 $ |
|---|---|
| № об'єкта: | 2-496-115 |
| Тип: | торгівельні площі, кафе, бар, ресторан, об'єкт сфери послуг, готель, інше |
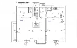
| Поверх: | 1 / 5 |
| Площа: | 2315 м2 |
| Ціна $/м²: | 2592 |
| Стеля /м: | 4 |
| кВт: | 350 |
| Кабінетів / залів: | 21 |
| Додатково: | окремий вхід, парковка |
Адреса: Київ, Подільський, Сагайдачного вул., 19, м. Поштова площа
м. Київ, Поділ.
метро 'Поштова Площа' 1 хвилина пішки.
Сагайдачного,19
Окремо стояча торгово - офісна будівля.
5 – поверхів, з них підвал та мансардний.
Ліфт!
Загальна площа = 2315 м2.
Корисна площа поверху = 387м2
Висота стелі: 1 поверх - 4.5м.
Висота стелі: 2,3,4,5 - 3.8 м.
Ремонт під чистове оздоблення.
Три вхідні групи.
Своє подвір'я, закрита територія.
Задній двір, п'ять паркомісць.
Потужність: 350 кВт. Вода. Опалення электро-котел. Будівля введена в експлуатацію.
Ціна продажу 6 млн. Торг
Очікувана оренда 1,2,3,4,5 - поверхів і тераси.
Ціна: 1- поверх 35$ с НДС війсковий час.
Ціна: 2,3,4,5 - поверх 15$ ТОВ с НДС.
Підвал 15$ ТОВ НДС
Комунальні та эксплуаатаційні окремо.













