Продається сучасний одноповерховий будинок з ділянкою 5 соток у селі Ходосівка  (№ 22-404-920)

Ціна: 110 000 $

Продається сучасний одноповерховий будинок з ділянкою 5 соток у селі Ходосівка фото 1

Характеристики

Ціна: 110 000 $
№ об'єкта: 22-404-920
Тип: будинок
Поверхів: 1
Спалень: 3
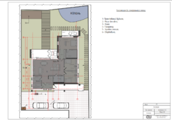
Площа будинку: 110 м2
Ділянка: 3,5 сот
Сусіди : +
Заїзд : +
Готовність: Чистова
кВт: 15
Свердловина: 40
Каналізація: Септик
Додатково: гараж, котеджне містечко

Адреса: Київська, Обухівський, Ходосівка, Сіверська

Характеристики будинку:

Площа: 110 м² з терасою 30 м²)
Кількість кімнат: 3
Зручне розташування у котеджному містечку “Сіверська Венеція”
Інфраструктура містечка:

Дитячий і спортивний майданчики, мінімаркет, банний комплекс, кав'ярня з крафтовою випічкою
Зупинка громадського транспорту за 300 метрів, зручний доїзд до метро “Теремки”
Поруч озеро з пляжем, місцями для риболовлі та прогулянок, приватне озеро для тихої риболовлі
Локація:

Тиха зелена зона між двома лісами, де можна гуляти, збирати гриби та відпочивати на 15-кілометровому велотреку
Маршрути для квадроциклів і баггі, поруч природний заповідник
Інфраструктура поруч (в радіусі 3 км):

Дитячі садки, школи, аптеки, супермаркети (АТБ, Сільпо, Фора), ТЦ «Мануфактура», ресторани, кафе, магазини техніки, СТО, відділення Нової Пошти
Додаткові переваги:

При покупці — дизайнерський проект у подарунок
Широкий вибір проектів будинків і земельних ділянок у Ходосівці, Круглику, Лісниках, Нових Безрадичах
Цей будинок — ідеальний варіант для комфортного проживання на природі, з усіма зручностями та швидким доступом до міста!

Об'єкт на карті

Замовити зворотній дзвінок